Eladó családi ház Péteri
89 899 999 HUF
1 096 341 Ft / m²
Péteri
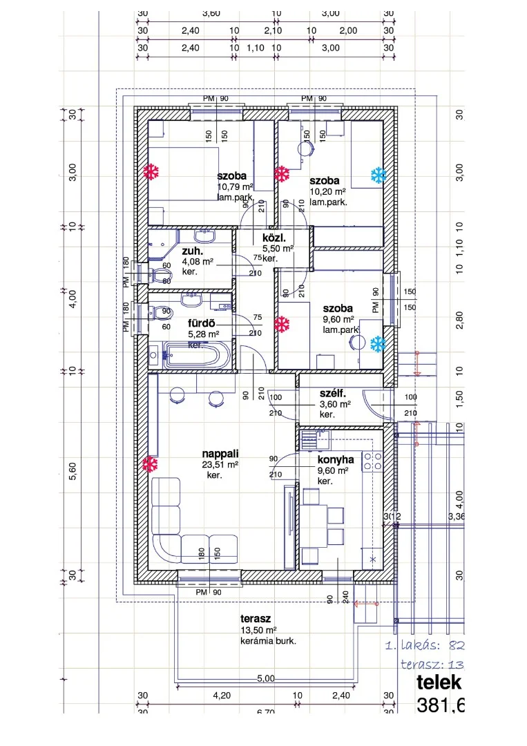
82
m²
4
Szoba
ház
Kategória
családi ház
Alkategória
Leírás
Eladó tulajdonostól 2018-ban épült modern ikerház, amely különálló házként funkcionál, falkapcsolat nélküli (szomszéddal nem összeérő, két pergola és kerítés választja el), külön önálló utcai bejárattal (nem nyeles telek). 3 hálószoba, 2 fürdőszoba (egyik zuhanyzós, másik fürdőkádas) 2 WC-vel, nappali, külön konyha, előszoba, fedett terasz, fedett kocsibeálló. Péteri csendes, rendezett, aszfaltos utcájában, új építésű házak környezetében található az ingatlan, amely kialakításának köszönhetően teljesen különálló, körbejárható családi házként funkcionál. Főbb jellemzők: • kiváló hőszigetelés (homlokzat, födém, lábazat) • alacsony rezsiköltség • betoncseréppel fedett tető • minőségi nyílászárók (5 légkamrás, 3 rétegű üvegezéssel) • 2 db légkondicionáló + 2 kiállás • Riasztó, redőnyök, szúnyoghálók. • Kertben gyümölcsfák, kerti tároló. •13 m²-es fedett terasz, térkövezett, fedett kocsibeálló. • Automata kapu, riasztó, mozgásérzékelők. • Külön konyha. • Fűtés kondenzációs gázkazánnal, radiátorokkal, a fürdőkben padlófűtéssel is megoldott. • Belterületi, teher- és jelzálogmentes, hitelezhető. Péteri biztonságos, barátságos község, az M4-es autópályától 2 km-re. Gépkocsival Budapest 20 perc alatt elérhető. Vonattal Hosszúberek-Péteri megállótól a Kőbánya-Kispesti metró 26 perc. Buszmegálló 8 perc, amivel megközelíthető a vasúállomás vagy az Örs vezér tér. Központ, óvoda, iskola, bölcsőde, rendelő 10 perc gyalogosan. Bevárlási lehetőségek 6 km-en belül van Lidl, Aldi, Tesco, Penny, Spar. Ingatlanközvetítők megkeresését nem kérem.
Ingatlan részletei
Ingatlan státusza











Hasonló ingatlanok

Eladó családi ház Balatonszepezd Halász utca

Eladó családi ház Nyíregyháza

Eladó családi ház Nyírpazony
