Eladó családi ház Enying Váci Mihály út

33 000 000 HUF

314 286 Ft / m²

Enying, Váci Mihály út

105

4

Szoba

ház

Kategória

családi ház

Alkategória

Leírás

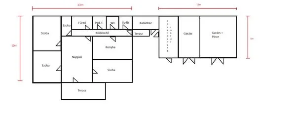
Enyingen nettó 105 nm-es családi ház eladó! Eladásra kínálunk egy 105 nm-es, 4 szobás és nappalis, dupla állásos garázzsal rendelkező családi házat. Az ingatlan kiváló elhelyezkedéssel rendelkezik, csendes, nyugodt környéken található, mégis könnyen megközelíthető. A telek 754 nm-es, Leírás: A ház szerkezetileg stabil, falazata B30 tégla, külső szigetelése van, beton födémes, így a tetőtér beépíthető további helyiségek kialakítása céljából. 10 éve történt tető felújítás, ereszcsatorna csere. A villanyvezetékek átfűzése megtörtént, ezen felül ipari áram is ki lett alakítva. A legkisebb szoba műpadló, a többi laminált padló borítást kapott, a többi helyiség taposóval rendelkezik, csupán esztétikai felújítást igényel. Az ablakok fa szerkezetűek, redőnnyel felszereltek, így a fény és a nyári meleg csökkenthető. Fűtése vegyes tüzelésű kazán, illetve vízteres kandalló van a rendszerre kötve. Az ingatlanhoz egy közel 80 nm-es melléképület kapcsolódik, ahol kazánház, tároló és 2 állásos garázs található, melyből egyik alatt egy pince került kialakításra. A melléképület körül termő gyümölcsfák vannak, kert művelésére igény szerint kialakítható.

Ingatlan részletei

ingatlan állapotafelújításra szoruló
alapterület105
telek alapterülete754
egész szobák száma4
erkély, terasz
parkolóhely típusanincs adat
parkolásgarázs
tetőtér beépíthetőségebeépíthető
pince van
komfortösszkomfortos
falazattégla
szigetelés5 cm
fűtésrendszerkandalló
másodlagos fűtésházközponti
akadálymentesített
kút

Ingatlan státusza

TípusEladó
Státuszapproved
Feladva2026. április 17.
Hirdetés azonosító#004057

Megosztás

Eladó családi ház Enying Váci Mihály út - Kép 2
Eladó családi ház Enying Váci Mihály út - Kép 3
Eladó családi ház Enying Váci Mihály út - Kép 4
Eladó családi ház Enying Váci Mihály út - Kép 5
Eladó családi ház Enying Váci Mihály út - Kép 6
Eladó családi ház Enying Váci Mihály út - Kép 7
Eladó családi ház Enying Váci Mihály út - Kép 8

Hirdesd meg ingatlanod néhány kattintással, teljesen ingyen!

Ingyenes hirdetésfeladás, gyorsan, egyszerűen. Kezdd el most!

Iratkozz fel hírlevelünkre

Kapd meg a legfrissebb ingatlanokat és tippeket!