Eladó tégla lakás Békéscsaba Andrássy út
56 900 000 HUF
849 254 Ft / m²
Békéscsaba, Andrássy út 1117.
67
m²
2+1
Szoba
lakás
Kategória
tégla
Alkategória
Leírás
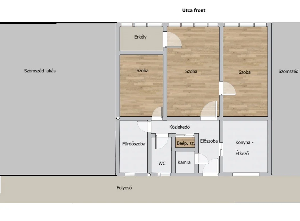
ELADÓ! Békéscsaba belvárosában felújított, erkélyes, 3 szobás téglalakás! Békés vármegye, Békéscsaba belvárosi részén, az Andrássy úton kínálok megvételre egy 67 m²-es, teljes körűen felújított, erkélyes téglalakást. Az ingatlan a liftes, rendezett társasház harmadik emeletén található, ahonnan szép, panorámás kilátás nyílik a belvárosra. A lakás teljesen felújított, igényes kialakítású. A három külön nyíló szoba, a gépesített konyha, a sarokkádas fürdőszoba, a külön WC és a kamra praktikus és élhető tereket biztosítanak. A külső műanyag nyílászárók elektromos redőnnyel és szúnyoghálóval felszereltek, a helyiségek minőségi burkolatot kaptak, a fűtést gázcirkó és hűtő-fűtő klíma biztosítja. A fenntartása igen kedvező, a havi közös költség 11.400 Ft. Az ingatlan elhelyezkedése kiváló: a város központi része néhány perc sétával elérhető, a közelben bevásárlási lehetőségek, gyógyszertárak, iskolák, bankok és éttermek, szórakozóhelyek találhatók. A környék biztonságos (az utca bekamerázott), rendezett, lakóközössége kulturált, a parkolás a ház mögött kedvezményesen megoldható. Ez az otthon ideális választás mindazoknak, akik modern, azonnal költözhető, belvárosi lakást keresnek, vagy befektetőknek, akik értékálló ingatlanba szeretnének beruházni. Érdeklődés esetén a lakás előre egyeztetett időpontban megtekinthető. Keressen bizalommal – akár hétvégén is!
Ingatlan részletei
Ingatlan státusza









Hasonló ingatlanok

Eladó tégla lakás Zalaegerszeg Platán sor

Eladó tégla lakás Budapest 02. ker. Hűvösvölgyi út

Eladó tégla lakás Dorog Hám K.ltp
