Eladó családi ház Debrecenben
139 000 000 HUF
1 007 246 Ft / m²
Debrecen

138
m²
4
Szoba
ház
Kategória
családi ház
Alkategória
Leírás
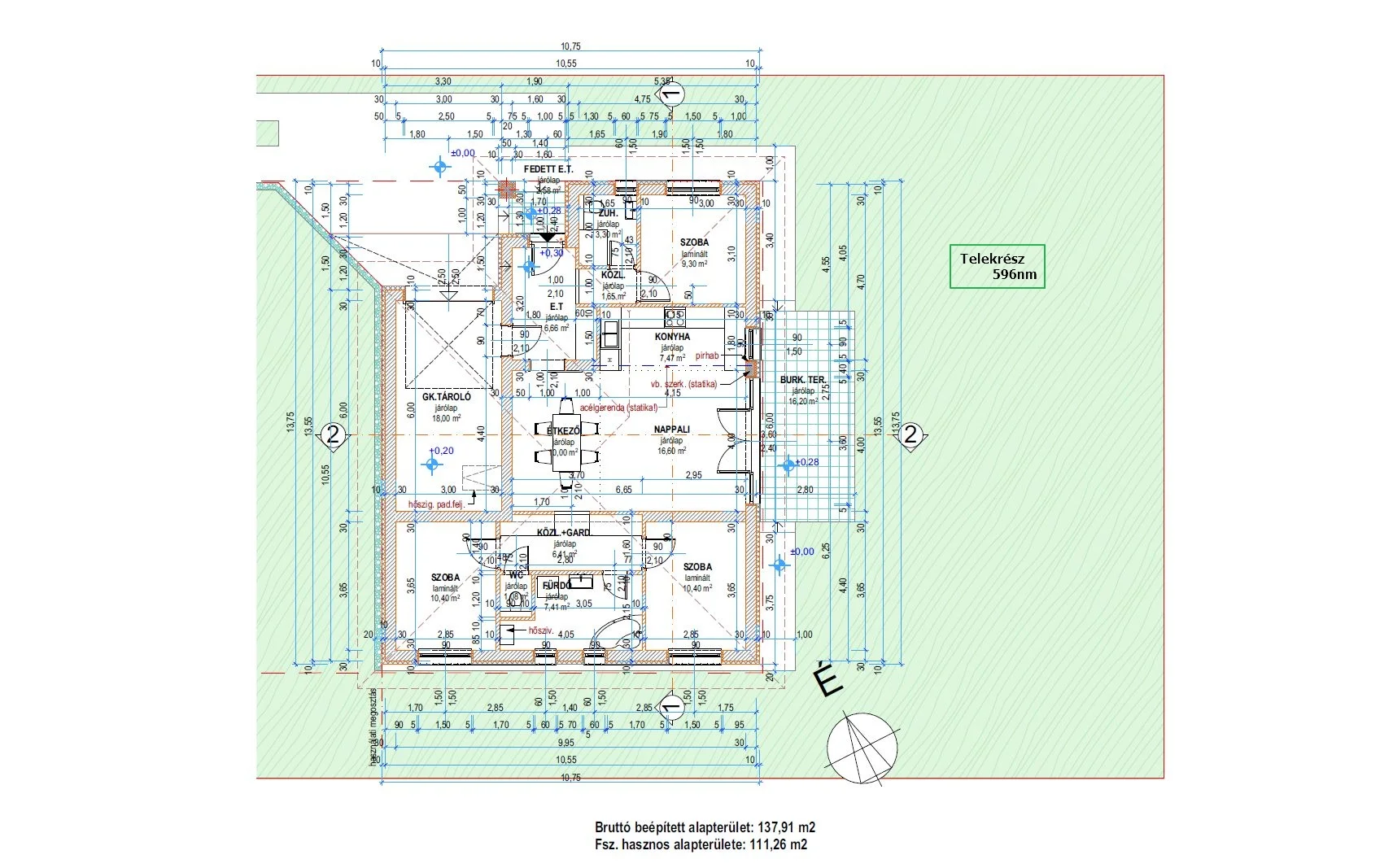
Új építésű, önálló családi ház eladó Debrecenben! Debrecen egyik közkedvelt városrészében, Homokkertben kínálunk megvételre egy magas műszaki tartalommal tervezett, földszintes, 3 szoba + nappalis családi házat. Az ingatlan kulcsrakész állapotban, 2026 végére készül el. A ház bruttó 138 m², nettó 111 m² alapterületű, melyhez 596 m²-es, kizárólagos használatú telekrész tartozik. A modern otthon hőszivattyús padlófűtéssel és mennyezeti hűtéssel, valamint Schüco prémium nyílászárókkal és rejtett redőnyökkel épül, így rendkívül alacsony rezsiköltséggel fenntartható. Az épület falazata Viablokk D300 37,5 NF+GT falazóblokk, amely kellemes hőérzetet, kiegyensúlyozott mikroklímát és egészséges, környezetbarát lakókörnyezetet biztosít. A kivitelezés kiváló minőségét több mint egy évtizedes tapasztalattal és referenciákkal rendelkező generálkivitelező garantálja. A kulcsrakész ár az alábbiakat is tartalmazza: - konyhabútor 1.000.000 Ft értékben, - térkövezés 100 m²-ig. További információért vagy megtekintési időpont egyeztetéséhez keressen bizalommal – hétvégén is elérhető vagyok! CSOK Plusz és Babaváró támogatás, valamint banki hitellehetőségek elérhetők, bankfüggetlen hitelügyintézőnk díjmentesen áll rendelkezésére.
Ingatlan részletei
Ingatlan státusza

Alaprajz




Elhelyezkedés
Hasonló ingatlanok

Eladó családi ház Szentendren

Eladó családi ház Tatabányán

Eladó családi ház Bakonyságon
