Eladó panel lakás Budapest 19. ker.en
53 000 000 HUF
1 000 000 Ft / m²
Budapest 19. ker.

53
m²
1+2
Szoba
lakás
Kategória
panel
Alkategória
Leírás
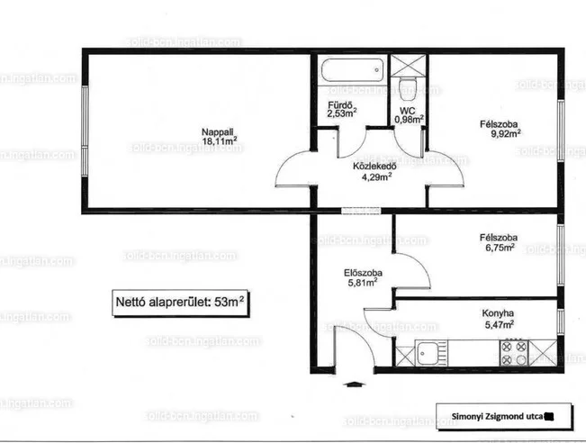
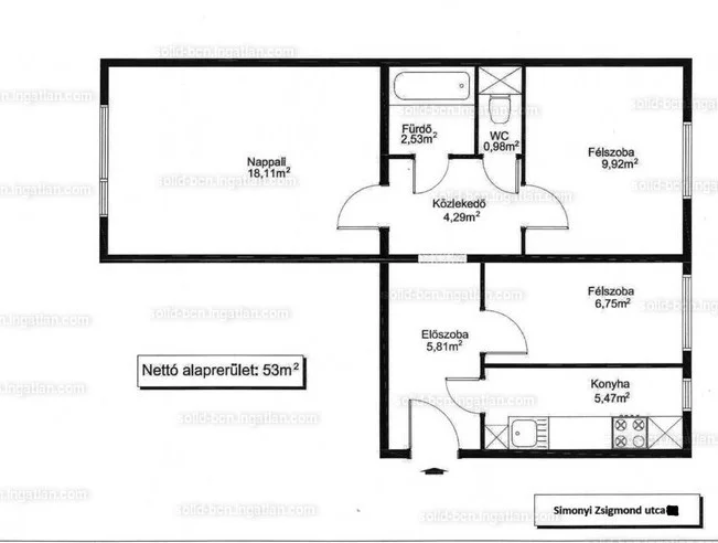
XIX. kerület, Simonyi Zsigmond utca Eladó panellakás Jó elosztású 1+2 félszobás 1. emeleti panellakás eladó Kispesten, a Simonyi Zsigmond utcában, ára 53.000.000 Ft. Az ingatlan lakható állapotú, de FELÚJITANDÓ és korszerűsítendő, így mindenki minőségi elvárásai, esztétikai igényei szerint alakíthatja. Az 53 m” lakás Elosztása praktikus és jelen állapotában is kiválóan használható, három külön nyíló szobája van, ami biztosítja a magánszférát minden használójának A lakásban van egy tágas és világos nappali, két háló, konyha, illetve fürdő és külön wc található. Az ablakokból a fény útját és a kilátást semmi nem akadályozza és reklám felületnek is használhatók. A fűtést és a meleg vizet a távhő biztosítja., közös költsége 17.000.-forint havonta. A lépcsőház tiszta rendes lakókkal. A Lift felújított. Kiváló infrastruktúrával rendelkező, egyedi és remek lehetőség. Kispest Központja, Kiváló Lakásnak, Magán Rendelőnek, Ügyvédi Irodának, Tanácsadónak, Ingatlanosnak, befektetésnek Első emeleti, első lakószinti, - áramszünet vagy liftmeghibásodás nem érinti! BEVÁSÁRLÁSI LEHETŐSÉGEK szemben a Kispesti Piac, a Spar, a Skála áruház, a Lidl - sok féle boltok, üzletek könnyen elérhetők. KÖZLEKEDÉS kar nyújtásnyira a villamos és számtalan irányba közlekedő buszmegállók, a 3 METRÓ és a KÖKI bevásárló központ, OBI pár percnyire. A Parkolás ingyenes. INTÉZMÉNYEK Az utcában Magyar - Spanyol nyelvű Gimnázium és Uszoda. 2 sarokra Trefort műszaki szakgimnázium és a kerületi Bíróság. A közelben Iskola, Óvoda, Játszóterek, Sportolási lehetőségek. Bank, Biztosító, Éttermek, Pizzériák Hívjon bizalommal! Közvetítők, ingatlanosok kérem ne keressenek.
Ingatlan részletei
Ingatlan státusza

Alaprajz





Elhelyezkedés
Hasonló ingatlanok

Eladó panel lakás Diósdon

Eladó panel lakás Egerben

Eladó panel lakás Budapest 14. ker.en
