Eladó csarnok ipari / raktár Gödöllőn
325 000 000 HUF
424 282 Ft / m²
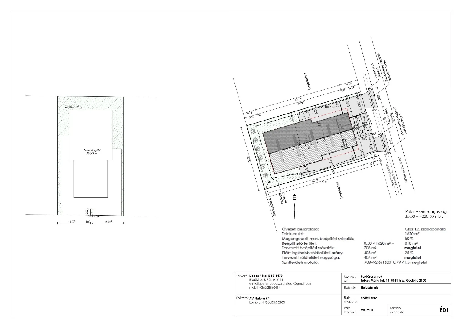
Gödöllő, Telkes Mária Krt. 14.

766
m²
ipari / raktár
Kategória
csarnok
Alkategória
Leírás
KIS ÉS KÖZEPES VÁLLALKOZÁSOK FIGYELEM, KIVÁLÓ BEFEKTETÉSI LEHETŐSÉG: Eladó a Gödöllői Ipari parkban, jól megközelíthető közlekedési útvonalon, az M31- es felhajtó közvetlen közelében, az M0-s tól 10 km-re, 1620m2,-es összközműves telken álló 708 m2- alapterületű, acél -vázszerkezetes, szendvicspanel borított (120 pir) ipari csarnok. Ereszmagasság 5,65m, gerincmagasság 6,34 m. A telek körbekerített, 2db 6,5 m-es ipari úszó kapuval, 2db kamion behajtóval, az út és parkoló kialakítása viacolor burkolattal ellátott. Az épület a gerincvonalban két önálló részre osztott, a továbbiakban „A” és „B” rész, külön is funkcionáló egységekből áll, hozzájuk tartozó saját telekrésszel, bejárati lehetőséggel, szétválasztott víz és áramellátással, fűtő-hűtő klímákkal kiépített, így két cég is zavartalanul működhet egymás mellett. (Nincs egymáson keresztüljárás és rezsi vita!) Igény szerint egyben vagy külön is megvásárolható! Az „A” rész netto m2 kialakításai: Raktár, 300 m2, (mely két ipari kapuval rendelkezik és akár tovább osztható 2db 150nm2-es részre ) a földszinten, 40m2 és a galérián is 40m2-en irodák, szociális helységek (wc, teakonyha) + a csarnokhoz tartozó telekrész 456m2, melyben parkolók és rakodóterület is kialakításra kerül viakolor burkolattal. Eladási ár: 161.500.000.- Ft + Áfa A „B” rész netto m2 kialakításai: Raktár, 306 m2, a földszinten, 40 m2 és a galérián is 40 m2-en iroda, szociális helységek (wc, fürdő, öltöző, teakonyha) + a csarnokhoz tartozó telekrész 456m2, melyben parkolók és rakodóterület is kialakításra kerül viakolor burkolattal. Eladási ár: 163.500.000.- Ft + Áfa Egyben 325.000.000 Ft + Áfa
Ingatlan részletei
Ingatlan státusza




Elhelyezkedés
Hasonló ingatlanok

Eladó csarnok ipari / raktár Cegléden

Eladó csarnok ipari / raktár Pellérden

Kiadó gyártó és raktárcsarnok
