Eladó Felújított, belső kétszintes, 3 szobás ingatlan Budaörs és Újbuda határán – családoknak és befektetőknek egyaránt
83 500 000 HUF
1 098 684 Ft / m²
Budaörs, Farkasréti út

Videó bemutató
76
m²
3
Szoba
lakás
Kategória
tégla
Alkategória
Leírás
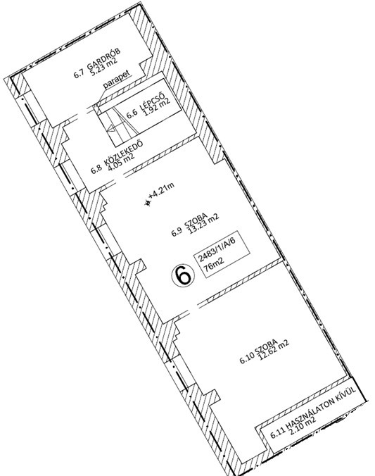
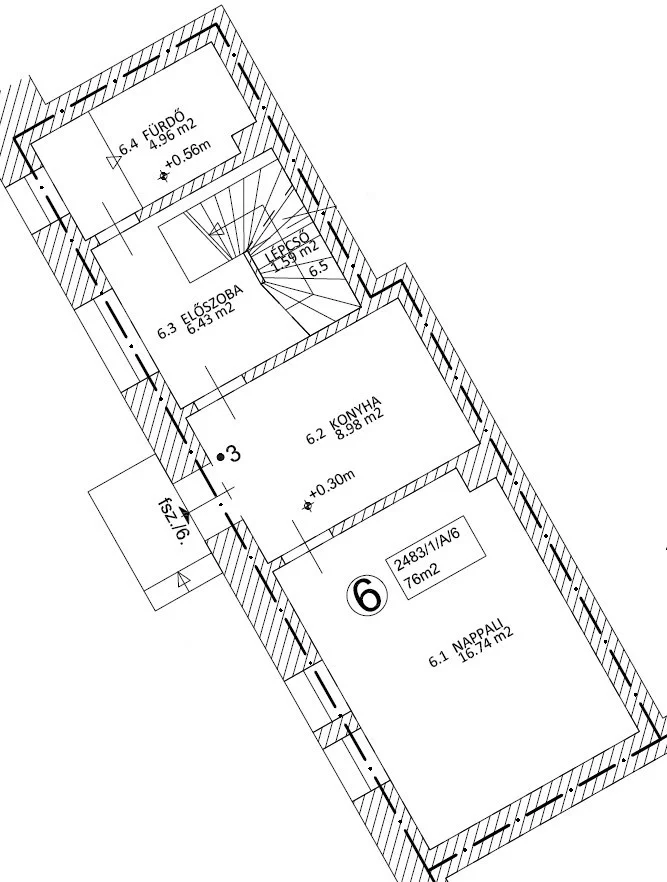
Felújított, belső kétszintes, 3 szobás ingatlan Budaörs és Újbuda határán – családoknak és befektetőknek egyaránt Engedje meg, hogy bemutassam Önnek ezt a kivételes lehetőséget: egy 76 m²-es, belső kétszintes, 3 szobás ingatlant, amely egy igényes, 6 lakásos társasházban található Budaörs és Újbuda-Spanyolrét határán. Az ingatlan teljes körű külső és belső felújításon esett át, így azonnal költözhető, per- és tehermentes, valamint Otthon Start Hitelre alkalmas. Miért érdemes megtekintenie ezt az ingatlant? 1.Teljes körű felújítás – azonnal költözhető állapot. Az ingatlan kívül-belül megújult, így Önnek nem kell további ráfordítással számolnia. 2.Kényelmes elrendezés – belső kétszintes, 3 szobás. A praktikus kialakítás ideális családok számára, ugyanakkor befektetési célra is tökéletesen alkalmas. 3.Modern fűtési és hűtési megoldások. Gáz cirkó fűtés, valamint szintenként hűtő-fűtő klíma biztosítja az energiahatékony és komfortos mindennapokat. 4.Jogilag rendezett helyzet – per- és tehermentes. Biztonságos vásárlás, tiszta jogi háttérrel. 5.Kiváló parkolási lehetőség. Díjmentes parkolás közvetlenül a ház előtt, ami ritka és értékes előny a környéken. Befektetők figyelmébe ajánlva Az ingatlan elhelyezkedése és minősége miatt hosszú távú bérbeadás esetén az átlagosnál magasabb hozamot garantál, így értékálló befektetésként is megállja a helyét. Lokáció és infrastruktúra Az ingatlan ideális környezetben található: csendes, családbarát környék, ugyanakkor minden fontos szolgáltatás – iskola, óvoda, üzletek – néhány perces autóúttal elérhető. A kiváló közlekedési kapcsolatoknak köszönhetően Budaörs és Újbuda központja is könnyen megközelíthető. Ne halassza el ezt a lehetőséget! Tekintse meg személyesen, rugalmas időpontban – akár hétvégén is. Hívjon most, és biztosítsa magának ezt az értékes ingatlant! Hitelválasztás egyszerűen és biztonságosan Engedje meg, hogy bemutassam, miként teheti átláthatóvá és kényelmessé a finanszírozást: Hitelezési Szakértőnk egyetlen lépésben összegzi és bemutatja Önnek a 8 piacvezető pénzintézet ajánlatát. Ezáltal Önnek nem kell hosszadalmas, felesleges banki körutakat tennie – minden releváns információt azonnal, egy helyen megkap. 1.Gyorsaság és hatékonyság – percek alatt átláthatja a legjobb lehetőségeket. 2.Biztonságos döntés – szakértői támogatással biztos lehet benne, hogy választása valóban az Ön érdekeit szolgálja. 3.Kényelmes folyamat – elkerülheti a sorban állást, az időrabló egyeztetéseket és a felesleges stresszt. Az eredmény: Ön a legkedvezőbb ajánlatot választhatja ki, miközben időt és energiát takarít meg – mindezt szakértői háttérrel, teljes biztonságban!
Ingatlan részletei
Ingatlan státusza

Videó bemutató








Elhelyezkedés
Hasonló ingatlanok

Eladó tégla lakás Budapest 13. ker.en

Eladó tégla lakás Budapest 10. ker.en

Eladó tégla lakás Vasváron
