Eladó tégla lakás Pécsen

64 900 000 HUF

927 143 Ft / m²

Pécs, Lyceum utca 5.

70

2

Szoba

lakás

Kategória

tégla

Alkategória

Leírás

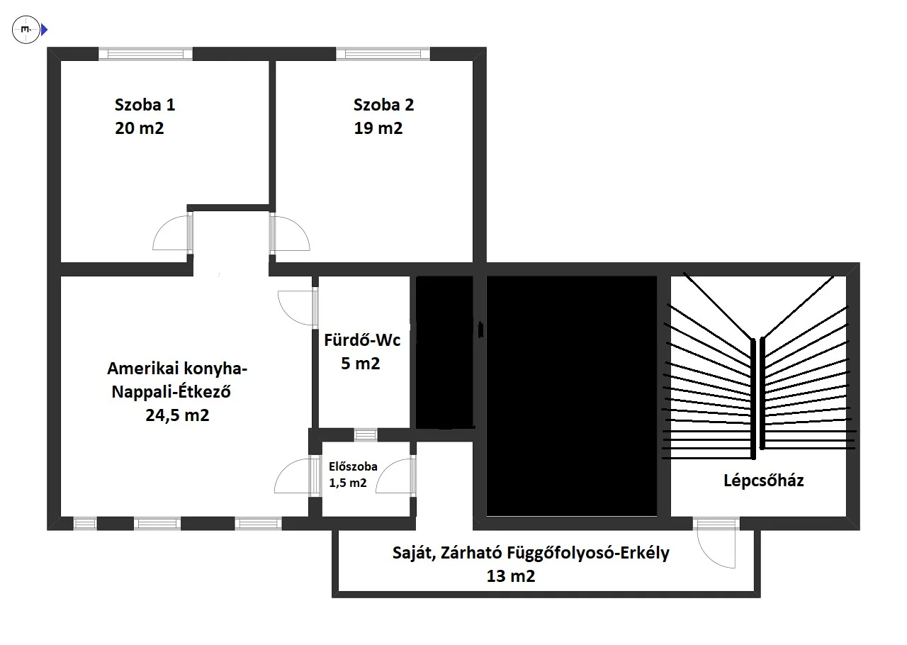
Eladó első emeleti, tégla-gázfűtéses lakás, Pécs történelmi Belvárosában – 70 m², erkély! !Ritka lehetőség! Pécs történelmi Belvárosának egyik hangulatos utcájában, a Lyceum utcában kínálok megvételre egy világos, első emeleti tégla/gázfűtéses lakást, rendezett társasházban. Ez az ingatlan elsősorban elhelyezkedésével emelkedik ki: pár perc sétára elérhető a belváros pezsgése, éttermek, kávézók, egyetemek – így ideális választás mind saját otthonnak, mind pedig befektetésre-béreztetésre. A lakás kelet–nyugati tájolásának köszönhetően egész nap világos, tágas terekkel és jól alakítható alaprajzzal rendelkezik. A jelenlegi elrendezés mellett többféle átalakítási lehetőség is adott, így az ingatlan könnyedén a mai igényekhez szabható. Külön értéket képvisel a 13 m²-es, kizárólagos használatú, zárható függőfolyosó-erkély, amely ritkaság a belvárosban. Elhelyezkedéséből adódóan kiváló befektetési potenciállal bír, hosszútávon garantált értéknövekedést, illetve magas bérleti hozamot realizál. Az ingatlan jó általános állapotú, ugyanakkor a mai kor elvárásaihoz igazodva műszaki és esztétikai felújítást igényel, amelyet követően egy modern, értéknövelt lakás alakítható ki. A társasház rendezett, a tetőszerkezet nemrég teljes körű felújításon és szigetelésen esett át. Főbb jellemzők; - Lakótér: 70 m2 - Erkély(Saját, zárható függőfolyosó): 13 m2 - Gáz konvektor fűtés - 1. Emelet - Saját tároló - Új, szigetelt tetőszerkezet Per- és tehermentes! Azonnal birtokba vehető. Ár: 64,9 M Ft További információért keressen bizalommal telefonon.

Ingatlan részletei

alapterület70
egész szobák száma2
erkély, terasz
erkély, terasz mérete13
ingatlan állapotaátlagos
épület szintjei3
hányadik emeleten1. emelet
komfortösszkomfortos
bútorozottságnem bútorozott
fűtésrendszergázkonvektor
parkolásutcán fizetős övezet
kilátásutcára néző

Eladó adatai

L

Lukács Ádám

Magánszemély

Aktív tag

Telefonszám

+3670*****

Húzd el a szám megjelenítéséhez
Az adatait bizalmasan kezeljük

Ingatlan státusza

TípusEladó
Státuszapproved
Feladva2026. március 21.
Hirdetés azonosító#003374

Megosztás

Eladó tégla lakás Pécsen - Kép 2
Eladó tégla lakás Pécsen - Kép 3
Eladó tégla lakás Pécsen - Kép 4
Eladó tégla lakás Pécsen - Kép 5
Eladó tégla lakás Pécsen - Kép 6
Eladó tégla lakás Pécsen - Kép 7
Eladó tégla lakás Pécsen - Kép 8
Eladó tégla lakás Pécsen - Kép 9
+11
Eladó tégla lakás Pécsen - Kép 10
Eladó tégla lakás Pécsen - Kép 11
Eladó tégla lakás Pécsen - Kép 12
Eladó tégla lakás Pécsen - Kép 13
Eladó tégla lakás Pécsen - Kép 14
Eladó tégla lakás Pécsen - Kép 15
Eladó tégla lakás Pécsen - Kép 16
Eladó tégla lakás Pécsen - Kép 17
Eladó tégla lakás Pécsen - Kép 18
Eladó tégla lakás Pécsen - Kép 19
Eladó tégla lakás Pécsen - Kép 20

Hirdesd meg ingatlanod néhány kattintással, teljesen ingyen!

Ingyenes hirdetésfeladás, gyorsan, egyszerűen. Kezdd el most!

Iratkozz fel hírlevelünkre

Kapd meg a legfrissebb ingatlanokat és tippeket!