Eladó tégla lakás Székesfehérváron
149 597 871 HUF
885 195 Ft / m²
Székesfehérvár, Basa utca

169
m²
5
Szoba
lakás
Kategória
tégla
Alkategória
Leírás
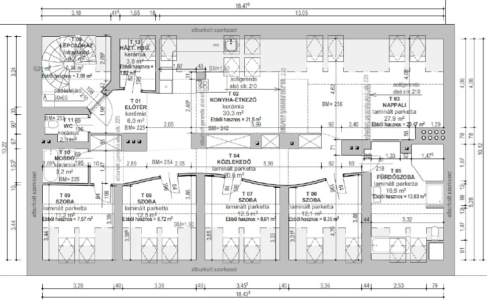
Székesfehérvár történelmi belvárosában, 149.597.871 Ft értékben megvételre kínáljuk a társasház egyetlen tetőtéri lakását! Elsősorban befektetők jelentkezését várjuk, középtávon visszabérlés konstrukcióval maradnánk az ingatlanban! A társasház műemléki védettségű, az 1860 -as években épült, Ybl tervek alapján. Az észak-déli fekvésű ingatlan a 2000 -es évek elején és közepén, a tető teljes körű felújításával és a padlástér beépítésével került kialakításra, 169 m2 -es nettó területen (hasznos: 131 m2) a kornak megfelelő, igényes színvonalon. Azóta nagyobb átalakítások és beruházások nem voltak, a lakás jó - újszerű állapotban van. A lakóhelyiségek lehatárolását mindenhol gipszkartonnal oldották meg, az ablakok mindenhol Velux típusúak, helyenkén szúnyoghálóval, külső és belső sötétítő mindenhol van. A lakás közüzemi mérőórái mind egyediek. Fűtése, Hoval kombi gázkazános, radiátorokkal és padlófűtésel. Melegvíz nem átfolyós rendszerű, hanem egy kb. 200 literes puffer tartályra dolgozik, amit napkollektor is kiegészít. Hűtése klímával megoldott, helyiségenként külön-külön. Lakáshoz külön tárolók nincsenek, csak közös használatú terek (pince, kerékpártároló). Belső udvar részben zöldterület, csak gyalogosan megközelíthető, igényesen karbantartott Helyiségek - saját lépcsőház, festett lambéria burkolattal, amelyhez külön "cselédlépcső" vezet fel az udvarról, hangulatos fali tégla burkolattal, de megközelíthető a belső lépcsőházból is, a gangon keresztül - háztartási helyiség, - előtér - WC, pissoir -al is felszerelve - konyha és étkező - nappali - fürdőszoba, szauna + zuhanyzó + jakuzzi vagy fürdőkád beépítési lehetőséggel - 4 db teljes értékű szoba - mosdó, fürdőkáddal
Ingatlan részletei
Ingatlan státusza

Alaprajz











Elhelyezkedés
Hasonló ingatlanok

Eladó tégla lakás Dunaújvárosban

Eladó tégla lakás Szolnokon

Eladó tégla lakás Kazincbarcikan
