Eladó tégla lakás Szombathelyen
36 900 000 HUF
670 909 Ft / m²
Szombathely

55
m²
2
Szoba
lakás
Kategória
tégla
Alkategória
Leírás
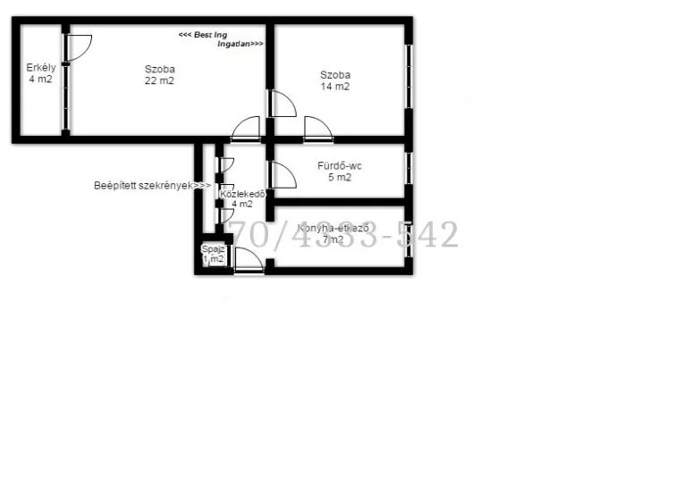
Gyönyörű panoráma kilátással tégla építésű karbantartott társasházi lakás eladó. - A fotón látható minőségi bútorok a vételár részét képezik. - Új műanyag ablakok, műanyag redőnnyel. - Egyedi közművek. - Közvetlen konyha kapcsolattal külön spajz. - Jelenleg összenyitható szobák. - Nyugodt környezetű lakás. - Természetre néző ablakok. - A kedvelt elhelyezkedés. - Gázkonvektoros egyedi fűtés. - Jó állapotú parkettás szobák. - Tégla építésű 55 m2 erkélyes lakás lakótere áll 2 nagyméretű szobából + 1 konyha-étkező + 1 spajz + 1 fürdő- wc + 1 közlekedőből, + 1 erkélyből. - A jelenlegi lakrész részleteiben a mellékelt alaprajzokon megtalálható. - Azonnal birtokba vehető. - Nagyon jó lakóközösség. - Kultúrált tiszta lépcsőház. - Rendkívül alacsony rezsi és közös költség. ( 13 ezer ft) - Beépített szekrények közlekedőben. - Saját pincetároló és közös tároló. - Befektetőknek is kiváló lehetőség. - Jól frekventált lakókörnyezet; a közelben belváros, boltok, iskola, óvoda, gyógyszertár, buszmegálló is megtalálható. - Nagy előnye a tégla építés, az egyedi közművek, az elhelyezkedése és az alacsony fenntartási költsége. - Kedvező irányár: 36,9 millió forint. - Az ingatlan teljesen per,-teher,-és igénymentes. - Hitelre van szüksége? Bankfüggetlen Hitelszakértő kollégánk ingyenesen áll rendelkezésére. - Komoly érdeklődés esetén hívjon a megadott telefonszámon, ha éppen nem ér el, akkor küldjön sms-t, írjon ingyenes WhatsApp-on, vagy küldjön e-mailt, adja meg elérhetőségét és ahogy tudom visszahívom.
Ingatlan részletei
Ingatlan státusza















Elhelyezkedés
Hasonló ingatlanok

Eladó tégla lakás Dunaújvárosban

Eladó tégla lakás Szolnokon

Eladó tégla lakás Kazincbarcikan
